Trouver une entreprise pour faire un diagnostic mesurage Loi Boutin à Nemours ? NEMOURS

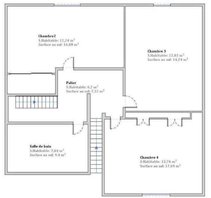
Diagnostic Loi Boutin : mesurez avec précision la surface habitable de votre bien en location

Diagnostic Loi Boutin : mesurez avec précision la surface habitable de votre bien en location

Un mesurage réglementaire indispensable pour toute location vide à usage de résidence principale Vous souhaitez louer un logement vide à Melun ou en Seine-et-Marne ? La loi Boutin impose de mentionner la surface habitable exacte dans le bail de location.
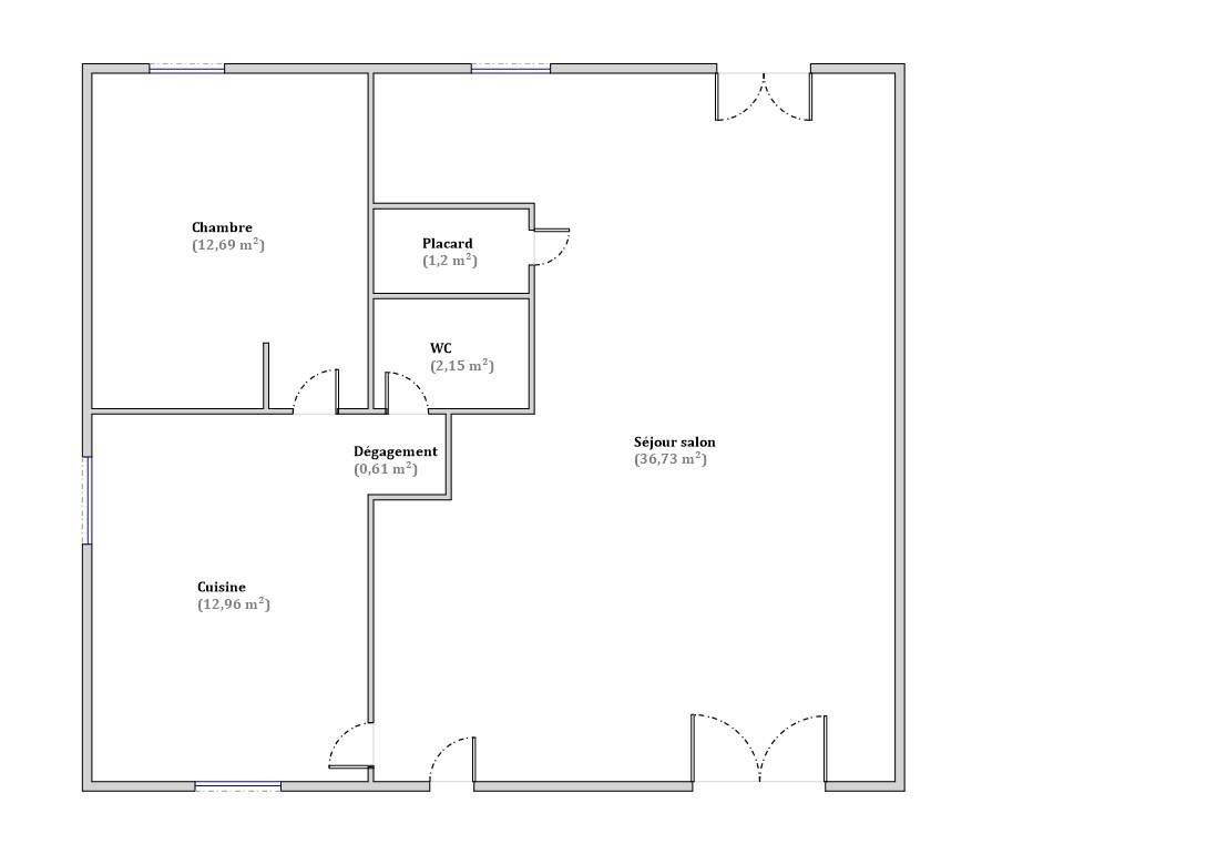
Diagnostic Loi Carrez pour la vente d’une maison à Provins – Mesurez la surface avec précision

Diagnostic Loi Carrez pour la vente d’une maison à Provins – Mesurez la surface avec précision

Besoin d’un diagnostic Loi Carrez à Provins pour vendre votre maison en copropriété ? Faites appel à un expert certifié pour une mesure précise et conforme.
Attestation de superficie pour commerces, restaurants et logements

Attestation de superficie pour commerces, restaurants et logements

Superficie certifiée : un document clé pour estimer la valeur vénale et locative. Faites appel à notre cabinet pour votre attestation de superficie. Un document fiable et précis pour calculer la valeur vénale ou locative de votre logement, commerce ou restaurant.
Autres annonces
Diagnostic Loi Boutin : mesurez avec précision la surface habitable de votre bien en location
Diagnostic Loi Boutin : mesurez avec précision la surface habitable de votre bien en location
Un mesurage réglementaire indispensable pour toute location vide à usage de résidence principale Vous souhaitez louer un logement vide à Melun ou en Seine-et-Marne ? La loi Boutin impose de mentionner la surface habitable exacte dans le bail de location.
Diagnostic Loi Carrez pour la vente d’une maison à Provins – Mesurez la surface avec précision
Diagnostic Loi Carrez pour la vente d’une maison à Provins – Mesurez la surface avec précision
Besoin d’un diagnostic Loi Carrez à Provins pour vendre votre maison en copropriété ? Faites appel à un expert certifié pour une mesure précise et conforme.
Attestation de superficie pour commerces, restaurants et logements
Attestation de superficie pour commerces, restaurants et logements
Superficie certifiée : un document clé pour estimer la valeur vénale et locative. Faites appel à notre cabinet pour votre attestation de superficie. Un document fiable et précis pour calculer la valeur vénale ou locative de votre logement, commerce ou restaurant.
Diagnostic Loi Boutin : mesurez avec précision la surface habitable de votre bien en location
Diagnostic Loi Boutin : mesurez avec précision la surface habitable de votre bien en location
Un mesurage réglementaire indispensable pour toute location vide à usage de résidence principale Vous souhaitez louer un logement vide à Melun ou en Seine-et-Marne ? La loi Boutin impose de mentionner la surface habitable exacte dans le bail de location.
Diagnostic Loi Carrez pour la vente d’une maison à Provins – Mesurez la surface avec précision
Diagnostic Loi Carrez pour la vente d’une maison à Provins – Mesurez la surface avec précision
Besoin d’un diagnostic Loi Carrez à Provins pour vendre votre maison en copropriété ? Faites appel à un expert certifié pour une mesure précise et conforme.
Attestation de superficie pour commerces, restaurants et logements
Attestation de superficie pour commerces, restaurants et logements
Superficie certifiée : un document clé pour estimer la valeur vénale et locative. Faites appel à notre cabinet pour votre attestation de superficie. Un document fiable et précis pour calculer la valeur vénale ou locative de votre logement, commerce ou restaurant.
Nous écrire
Les champs indiqués par un astérisque (*) sont obligatoires
Nos certifications & garanties
Besoin de plus d'informations ?
/