Mesurage Loi Carrez et Loi Boutin pour Biens Immobiliers en Seine-et-Marne

Diagnostics Loi Carrez et Loi Boutin pour obtenir des mesures précises de votre bien immobilier près de Fontainebleau

AMC Diagnostic, votre expert en diagnostics immobiliers, vous accompagne dans vos projets de vente ou de location à Fontainebleau et ses environs. Nous réalisons les diagnostics Loi Carrez et Loi Boutin, indispensables pour sécuriser vos transactions immobilières.

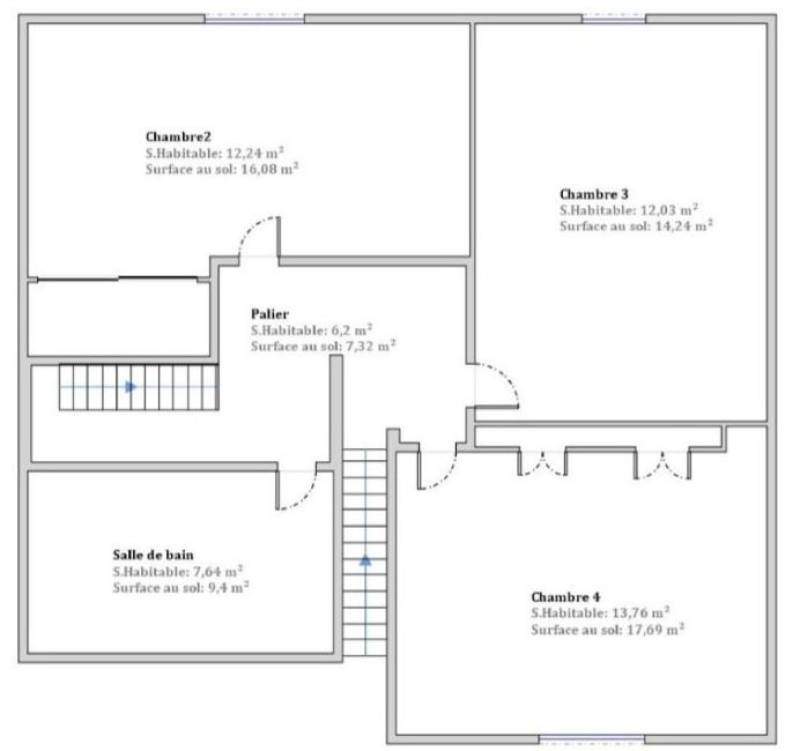
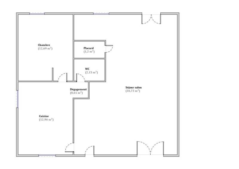
La Loi Carrez concerne la vente de biens en copropriété et impose de mesurer précisément la surface privative. La Loi Boutin, quant à elle, s'applique à la location de logements et définit la surface habitable. Nos experts certifiés effectuent ces mesures avec rigueur, vous garantissant des résultats fiables et conformes à la législation.

Pourquoi choisir AMC Diagnostic ? Nous vous offrons :

  • Expertise locale : Une connaissance approfondie du marché immobilier de Fontainebleau et de ses spécificités.
  • Mesures précises : Des diagnostics réalisés avec des outils de pointe pour une précision optimale.
  • Rapports détaillés : Des documents clairs et complets, facilitant vos démarches.
  • Réactivité : Des interventions rapides pour répondre à vos besoins dans les meilleurs délais.

Que vous soyez vendeur ou bailleur, les diagnostics Loi Carrez et Loi Boutin sont essentiels pour éviter tout litige et assurer la transparence de vos transactions. Faites confiance à AMC Diagnostic pour des diagnostics précis et professionnels près de Fontainebleau.

Nous écrire
Les champs indiqués par un astérisque (*) sont obligatoires
Attestation de superficie pour commerces, restaurants et logements

Attestation de superficie pour commerces, restaurants et logements

Superficie certifiée : un document clé pour estimer la valeur vénale et locative. Faites appel à notre cabinet pour votre attestation de superficie. Un document fiable et précis pour calculer la valeur vénale ou locative de votre logement, commerce ou restaurant.
Diagnostic Loi Carrez pour la vente d’une maison à Provins – Mesurez la surface avec précision

Diagnostic Loi Carrez pour la vente d’une maison à Provins – Mesurez la surface avec précision

Besoin d’un diagnostic Loi Carrez à Provins pour vendre votre maison en copropriété ? Faites appel à un expert certifié pour une mesure précise et conforme.
Diagnostic Loi Boutin : mesurez avec précision la surface habitable de votre bien en location

Diagnostic Loi Boutin : mesurez avec précision la surface habitable de votre bien en location

Un mesurage réglementaire indispensable pour toute location vide à usage de résidence principale Vous souhaitez louer un logement vide à Melun ou en Seine-et-Marne ? La loi Boutin impose de mentionner la surface habitable exacte dans le bail de location.
Nos certifications & garanties
Besoin de plus d'informations ?
/